Für Werte, die wachsen.

Für Werte,
die wachsen.

zurück
Mietobjekte

Ruchholzstrasse 26, Bottmingen

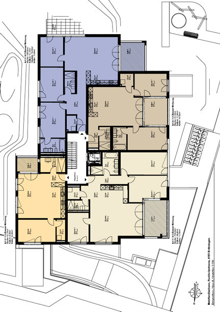
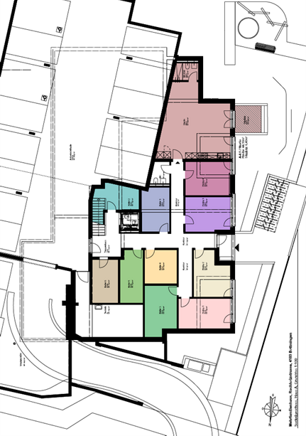
Neubauprojekt mit insgesamt 10 modernen und grosszügigen Mietwohnungen, einem Studio sowie Einstellhalle

1 x Studio ca. 44.1 m2
2 x 2.5 Zimmer-Wohnungen ca. 62.2 m2
3 x 3.5 Zimmer-Wohnungen ca. 82.0 m2   - 103.8 m2
5 x 4.5 Zimmer-Wohnungen ca. 108.7 m2   - 118.2 m2

Bezug: geplant per 1. Oktober 2026